Một ngôi nhà hoàn hảo không chỉ là một ngôi nhà mang trong mình một thiệt kế bắt mắt, một gói nội thất hiện đại. Một ngôi nhà có đầy đủ yếu tố hoàn mĩ như thế, vậy yếu tố gây nên cái ”không chỉ” ở đây là gì?. Vâng! Chúng tôi xin trả lời đó chính là sự tiện nghi, thoải mái đến từ hệ thống chiếu sáng, hệ thống xử lý, cấp thoát nước. Bạn đã bao giờ rơi vào tình cảnh vòi nước có biểu hiện chảy nhỏ giọt, nước cho ra không được trong lành ? Vậy chúng tôi xin khẳng định hệ thống xử lý nước thải của gia đình bạn đang gặp vấn đề rồi.
Một ngôi nhà dù có sở hữu vẻ đẹp hoàn mỹ đến đâu cũng không thể trở nên hoàn hảo nếu nó không mang lại những trải nghiệm sử dụng tuyệt vời cho gia chủ.
___Hút bể phốt Việt___
Trong bài viết này, Hút bể phốt Việt sẽ chia sẻ tới quý khách hàng những thông tin hữu ích trong sơ đồ cấp thoát nước nhà dân dụng. Hãy cùng chúng tôi tìm hiểu chi tiết những thông tin này ngay thôi nào.
Sơ đồ hệ thống cấp thoát nước nhà dân dụng
Contents
Xây nhà dường như là công trình có ý nghĩa nhất đối với đời người trong giai đoạn xây dựng tổ ấm, an cư lạc nghiệp. Vì lẽ đó mà, mọi công đoạn trong thi công đều phải được chủ nhân tương lai của ngôi nhà đó tính toán kĩ lưỡng bởi nếu có bất kì vấn đề gì , sau khi hoàn thiện ngôi nhà đó sẽ rất khó khắc phục hậu quả.
Do đó, không chỉ chú trọng tới những bản vẽ thiết kế toàn diện của ngôi nhà, gia chủ còn phải đặc biệt lưu tâm tới bản vẽ sơ đồ nguyên lý hệ thống cấp thoát nước thải. Sơ đồ này sẽ mô phỏng toàn bộ đường ống cấp thoát nước, hệ thóng hoạt động cấp thoát nước, đường ống dẫn nước thải, đồng hồ đo, vị trí lắp đặt máy bơm,… Tất cả những thành phần đó đều được bản vẽ đó mô tả một cách chi tiết, rõ ràng, dễ hiểu nhất.
Nếu bản thiết kế đó tố ưu, phù hợp với đặc điểm của ngôi nhà thì quá trình thi công sẽ diễn ra một cách thuận lợi nhất. Nên nhớ đặc biệt đồng bộ 2 bản thiết kế thi công với bản thiết kế đường đống thoát nước, Hút bể phốt Việt đã ghi nhận rất nhiều trường hợp có sự xung đột giữa 2 bản thiết kế khiến cho gia chủ phải đập tường để xử lý hệ thống thoát nước khiến cho ngôi nhà mất đi vẻ đẹp đồng nhất.
Sau đây, Hút bể phốt Việt xin đi vào chi tiết và gửi tới quý khách hàng những sơ đồ cấp thoát nước nhà dân dụng mà chúng tôi cho rằng phổ biến và hiệu quả nhất hiện nay.
Sơ đồ hệ thống thoát nước nhà dân dụng thường gồm có 2 hệ thống chính
Thiết kế một bản thiết kế khoa học cho sơ đồ cấp thoát nước nhà dân dụng là công đoạn vô cùng quan trọng. Hệ thống thoát nước tiêu chuẩn trong các hộ ga đình bao gồm 2 hệ thống chính bao gồm
- Hệ thống cấp nước : Đây là bộ phận có nhiệm vụ dẫn nước từ các nguồn nước tổng từ các nhà máy lọc nước vào bộ phận trữ nước trong nhà. hệ thống cấp nước này sẽ được lắp đặt kèm với một đồng hồ báo lượng nước tương tự.
- Hệ thống thoát nước : Đây là bộ phận có nhiệm vụ đưa nước từ các công cụ sử dụng nước từ trong nhà ra ngoài. Hệ thống thoát nước này bao gồm xử lý nước thải từ nhà vệ sinh, nước thải trong sinh hoạt, nước mưa…
3 quy trình để thết kế hệ thống cấp thoát nước tốt
Thiết kế hệ thống cấp thoát nước đòi hỏi phải tính toán khoa học hợp lý, kỹ lưỡng. Bởi chỉ cần một sơ suất nhỏ cũng có thể gây ra những phiền toái về sau cho gia chủ và gia đình. Một bản thiết kế hoàn chỉnh thường được diễn ra theo 3 quy trình dưới đây :
Quy trình 1: Lập sơ đồ nguyên lý thiết kế hệ thống cấp thoát nước trong nhà gia dụng
Trước khi thiết kế bản sơ đồ hoàn thiện , việc đầu tiên các kỹ sư thiết kế phải có bản vẽ công trình nhà ở hiện tại của gia chủ để nghiên cứu lắp đặt hệ thống cấp nước cho hợp lý. Sau đó các kỹ sư sẽ thiết lập sơ đồ nguyên lý hoạt động của hệ thống cấp nước. Sơ đồ nguyên lý này sẽ tái hiện lại khái quát nhất về đường ống cấp nước, thoát nước, vị trí đồng hồ, máy bơm.
Quy trình 2: Bắt đầu tiến hành triển khai mặt bằng thiết kế hệ thống cấp thoát nước nhà gia dụng
Khi kỹ sư thiết kế đã hàn tất xây dựng thành công sơ đồ nguyên lý hoạt động của hệ thống cấp thoát nước, bản vẽ kiến trúc mặt bằng. Bước tiếp theo kỹ sư thiết kế sẽ triển khai những ý tưởng thiết kế hệ thống cấp thoát nước nhà gia dụng cho các đội thợ mà gia chủ đã khoán.
Đội ngũ thợ sẽ bố trí các đường ống cấp nước, gen chứa hợp lý. Việc bố trí phải đảm bảo hệ thống cấp thoát nước đẹp nhất, tiết kiệm không gian nhất. Thêm nữa, vị trí đặt đồng hồ, máy bơm nước, bể nước sao cho hợp lý và thuận lợi cho quá trình bảo trì, bảo dưỡng. Tất cả công đoạn hi công đều dưới sự chỉ đạo, giám sát của kỹ sư thiết kế.
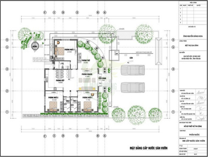
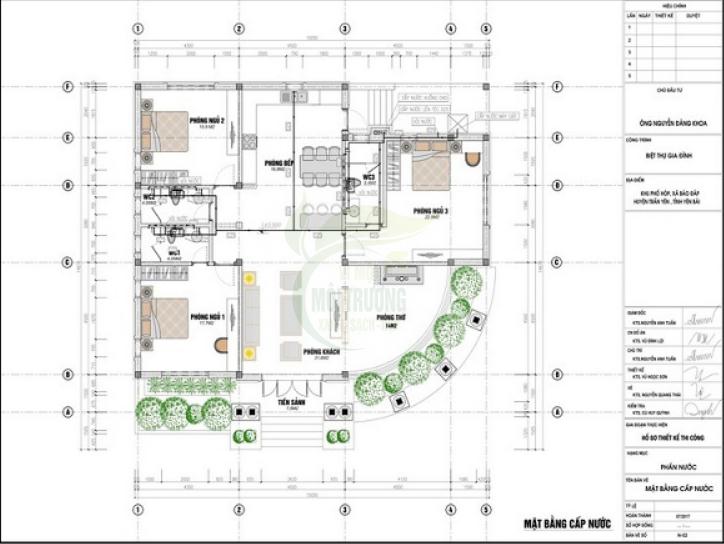
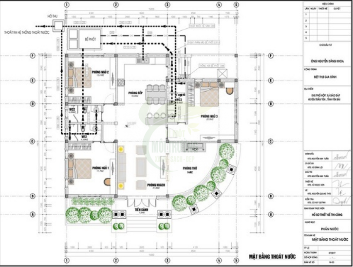
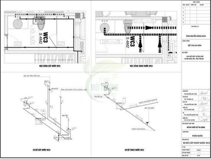
Hút bể phốt Việt xin mơi bạn đọc tham khảo bản vẽ mặt bằng sơ đồ cấp thoát nước nhà dân dụng 2.5 tầng:




Quy trình 3: Sơ đồ lắp đặt chi tiết hệ thống cấp thoát nước nhà gia dụng
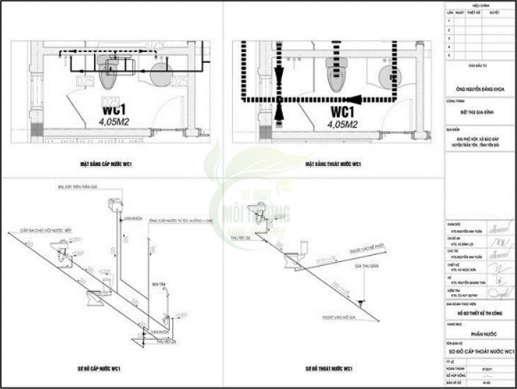
Sau khi triển khai mặt bằng thiết kế hệ thống cấp thoát nước trong nhà dân dụng cho tổ thợ. Các kiến trúc sư sẽ chuyển sang bản vẽ chi tiết sơ đồ cấp thoát nước nhà dân dụng. Các bộ phận quan trọng như chi tiết bể tự hoại, chi tiết lắp hệ thống ống nước trong nhà vệ sinh, hệ thống nước sinh hoạt…đều được thể hiện rõ ràng để việc thi công hệ thống cấp nước diễn ra nhanh chóng, hiệu quả. Đây là bản vẽ chi tiết nhất, nhiều thông tin nhất để gia chủ dễ theo dõi.



Sau khi kiến trúc sư đã tiến hành lên sơ đồ cấp thoát nước nhà dân dụng một cách hoàn chỉnh. Bộ phận thi công sẽ tiến hành lắp đặt nguyên vật liệu dưới sự chỉ đạo của kỹ sư thiết kế. Đây được coi là giai đoạn thi công phần thô cho thiết kế nhà hoàn chỉnh.
Các yếu tố của hệ thống nước trong gia đình
Một hệ thống cấp thoát nước cơ bản trong gia đình gồm 4 yếu tố bao gồm:
- Hệ thống cung cấp, phân phối nước: Đây là hệ thống bao gồm ống vận chuyển nước từ nguồn đến các trang thiết bị.
- Hệ thống thoát nước: Đây là hệ thống này bao gồm các ống thoát nước, ống cống thu lượm chất thải, khu vực cung cấp nước đến nơi xử lý nước thải.
- Hệ thống thông khí: Hệ thống này gồm các ống trên không trung, được tận dụng để nối với hệ thống thoát nước. Mục đích để cung cấp khí cho hệ thống này.
- Hệ thống máy móc, thiết bị: Hệ thống này bao gồm các thiết bị sử dụng nước từ máy giặt, bồn rửa chén, bình nóng lạnh, bồn vệ sinh…các thiết bị này phải đảm bảo thông khí để có thể khử mùi từ hệ thống xử lý nước thải thoát ra.
Các bộ phận của hệ thống cấp thoát nước cho nhà dân dụng
Hệ thống cấp thoát nước nhà dân dụng hoàn chỉnh bao gồm các bộ phận sau:
- Đường ống chính: Đây là đường ống chính thường nằm dưới tầng trệt. Ống có nhiệm vụ tiếp nhận các loại chất thải từ các ống của ngôi nhà sau đó vận chuyển đến các hệ thống cống của thành phố.
- Cửa thăm: Đây là thiết bị dùng để kiểm tra và làm sạch đường ống. Bộ phận này thường có nắp đậy kín với kích thước 102 mm.
- Ống thoát nước: Ống này có nhiệm vụ thu gom nước thải, nước vệ sinh. Kích thước của đường ống còn phụ thuộc vào nhu cầu sử dụng của từng gia đình.
- Ống ngang: Các ống này thường nằm ngang và có độ nghiêng không quá 45 độ.
- Ống thoát dọc: Đây là ống chính theo phương đứng.
- Bẫy nước: Có tác dụng ngăn mùi nhưng vẫn đảm bảo hệ thống xử lý nước thải hoạt động tốt.
- Thông khí: Đây là các ống được nối với hệ thống thoát nước. Mục đích nhằm đảm bảo sự lưu thông không khí của hệ thống cấp thoát nước.
Kích thước của các ống nước trong thiết kế sơ đồ cấp thoát nước nhà dân dụng
Việc chọn được kích thước ống phù hợp với nhu cầu thì hệ thống cấp thoát nước mới hoạt động hiệu quả. Do đó kích thước của các ống trong thiết kế sơ đồ cấp thoát nước nhà dân dụng cần phải được đặc biệt chú trọng.
Ống cấp nước
Đường kính của ống
– Nguồn cung cấp nước chính đến bình nước nóng hoặc nơi phân nhánh: 20mm.
– Các ống nước nhánh, ống cấp nước cho thiết bị :13mm.
Ống thoát nước
Đường kính ống thoát nước có kích thước lần lượt như sau:
– Ống thoát nước chính: >102mm
– Ống thoát ngang của sàn: >78mm
– Ống bồn tắm, chậu rửa, máy giặt…:> 38mm
– Ống bồn vệ sinh: >78mm
Ống thông khí
Đường kính tối thiểu của ống thông khí lần lượt như sau :
– Ống chính: >78mm
– Ống khác: >38mm

Quy định về vật liệu và thiết bị của ống nước
Các vật liệu ống nước bao gồm nhiều loại chẳng hạn như ABC, PVC, đồng, mạ kẽm…Hệ thống cấp thoát nước nhà ở dân dụng nên sử dụng các vật liệu theo quy định đã được kiểm nghiệm từ các cơ quan quản lý chất lượng, đánh giá để đảm bảo hoạt động bền bỉ theo thời gian.
- Ống nước thải: Nên chọn các chất liệu ống gang, ống nhựa…
- Ống nước thải sinh hoạt: Chất liệu tốt nhất là ống đồng, ống nhựa PEX, ống nhựa PPR…

Một số chú ý trong quá trình lắp đặt theo sơ đồ cấp thoát nước nhà dân dụng
Khi lắp đặt hệ thống nước thải gia chủ cần chú ý đến các vấn đề sau:
- Trong hệ thống xử lý nước thải tuyệt đối không được lắp nối chữ T, lắp nối chữ X, các nối phức tạp. Đặc biệt, hạn chế các ống nối cho các đường ống nằm ngang trong hệ thống xử lý nước thải.
- Tất cả ống thải, ống thoát nước, nơi có sự đổi hướng lớn hơn 45 độ đều phải bố trí cửa thăm để thuận tiện cho việc thông rửa hệ thống cấp thoát nước thải. Chú ý các cửa thăm phải được bố trí các dòng chảy hướng lên của bẫy nước. Đồng thời, bố trí các cửa thăm tại các bẫy nước của các ống xả rác, ống thoát chính ngang.
- Cần bố trí cửa thăm ở phía đáy của ống thoát nước chính theo phương đứng.
- Mỗi thiết bị vệ sinh cần có bẫy nước để khử mùi.
- Các hố ga, hố đựng bể phốt nước thải cần kín khí, kín nước. Đặc biệt phải được trang bị thêm các ống thông khí.
Các lỗi cần chú ý khi lắp đặt hệ thống cấp nước nhà dân dụng.
- Độ dốc của đường ống không chính xác
Độ dốc lý tưởng để lắp ống giúp nước thải chảy đúng tốc độ để vét sạch thành của ống là 6.5mm đến 300 mm. Nếu lắp ống dốc quá sẽ dẫn đến nguy cơ chất lỏng chảy nhanh. Trong khi đó chất rắn lại tồn đọng ở phía sau.
2. Bẫy nước không được thông khí
Bẫy nước có nhiệm vụ chính là ngăn mùi, khí độc, rác thải. Nếu lắp bẫy nước không đúng cách thì các chất thải dễ lọt vào trong nhà, gây ảnh hưởng nghiêm trọng đến sinh hoạt hằng ngày.

3. Thông khí nằm ngang
Ống thông khí có nhiệm vụ làm cho bẫy nước chia làm hai loại là ướt và khô. Nếu lắp ống thông khí không đúng, ống thông khí có thể bị tắc nghẽn gây ra những tác hại khó lường sau này.
4. Ống thông khí nằm ngang bên dưới lỗ xả tràn
Ống thông khí luôn phải đảm bảo khả năng thoát nước khi ống thoát bị tắc. Nếu lắp ống sai thì chức năng này sẽ không hoạt động tốt hoặc bị ngưng trệ.gây ách tắc.
5. Các cửa thăm bố trí không đủ Các cửa thăm cần được bố trí cẩn thận, đầy đủ. Điều này sẽ đảm bảo người dùng có thể thông tắc và làm sạch ống bất cứ khi nào.6. Các cửa thăm không tiếp cận được
Các cửa thăm luôn phải đảm bảo khoảng cách ít nhất từ 30cm đến 45cm. Đồng thời, phải có đủ không gian để làm việc, cho phép người thợ thi công có thể tiếp cận đẻ xử lý kịp thời khi xảy ra sự cố.
7.Không đủ không gian trống để thông khíNếu các khoảng trống thông khí không đủ sẽ gây ra nhiều ảnh hưởng. Chất thải có thể bị hút ngược trở lại đường cấp nước.8.Không đủ không gian xung quanh bệt xí và chậu rửa
Không gian xung quanh bệt xí và chậu rửa cần được bố trí khoảng cách phù hợp để người có kích thước cao lớn có thể sử dụng một cách thoải mái.9.Áp lực và nhiệt độ van xả chưa điều chỉnh đúng
Cần phải lắp van xả an toàn cho bình nước nóng để tránh tình trạng nổ bình khi áp lực của nước nóng tăng. Các van xả cần được lắp đặt đúng cỡ, đúng độ dốc để đảm bảo thoát nước của van khi xả ra.
Hy vọng qua bài viết trên mà Hút bể phốt Việt gửi tới các bạn. Chúng tôi mong các bạn có cái nhìn toàn diện nhất về sơ đồ cấp thoát nước nhà dân dụng. Đảm bảo gia đình bạn có được hệ thống cấp thoát nước lý tưởng nhất để nâng cao giá trị tận hưởng cuộc sống.
Và đừng quên liên hệ với Hút bể phốt Việt để được tư ván nếu gia đình bạn có bất cứ vấn đề gì liên quan đến hệ thống vệ sinh hay có nhu cầu hút bể phốt nhé. Chúng tôi sẽ phục vụ các bạn với mức giá rẻ nhất đi liền với chất lượng dịch vụ tối ưu.





